Casa Cinsc

ATOMAA

Zdjęcia Alberto Strada

Casa Cinsc znajduje się na północno-zachodnim krańcu Alp Włoskich, zanurzona w naturze, w jednej z nielicznych dolin oszczędzonych przez ekspansję turystyki masowej, która przekształciła góry w latach 50. do 80. XX wieku. Usytuowana jest nieopodal miejscowości Varzo, na wysokości prawie 1400 m n.p.m., wśród niewielkiej grupy domów osadzonych na zboczu góry. Miejsca niegdyś zamieszkane przez pokolenia, które utrzymywały rozległe pastwiska i pola uprawne, dziś powróciły do stanu gęstych lasów. To nieunikniony proces odzyskiwania przestrzeni przez naturę, który charakteryzuje dolinę.

Casa Cinsc • ATOMAA

Punktem wyjścia projektu była ruina typowa dla tego regionu, wykorzystywana w przeszłości jako schronienie dla zwierząt gospodarskich i siana. Konstrukcja była dość niestabilna, na granicy równowagi, ale kryła w sobie nieoczekiwane skarby. Podczas odsłaniania ścian, na parterze wyłonił się duży kamienny łuk oraz stary kominek sugerujący, że zanim budynek został przekształcony na stajnię, pełnił funkcję mieszkalną. To odkrycie stało się impulsem do podjęcia działań nie tylko konserwatorskich, lecz także reinterpretacyjnych. Architekci zdecydowali się zachować pierwotną bryłę, ale wprowadzili nową strukturę wewnętrzną. Kierując się logiką „przestrzeni w przestrzeni”, przywrócono blask dawnej formie zewnętrznej, ale radykalnie przekształcono wnętrza.

Casa Cinsc • ATOMAA

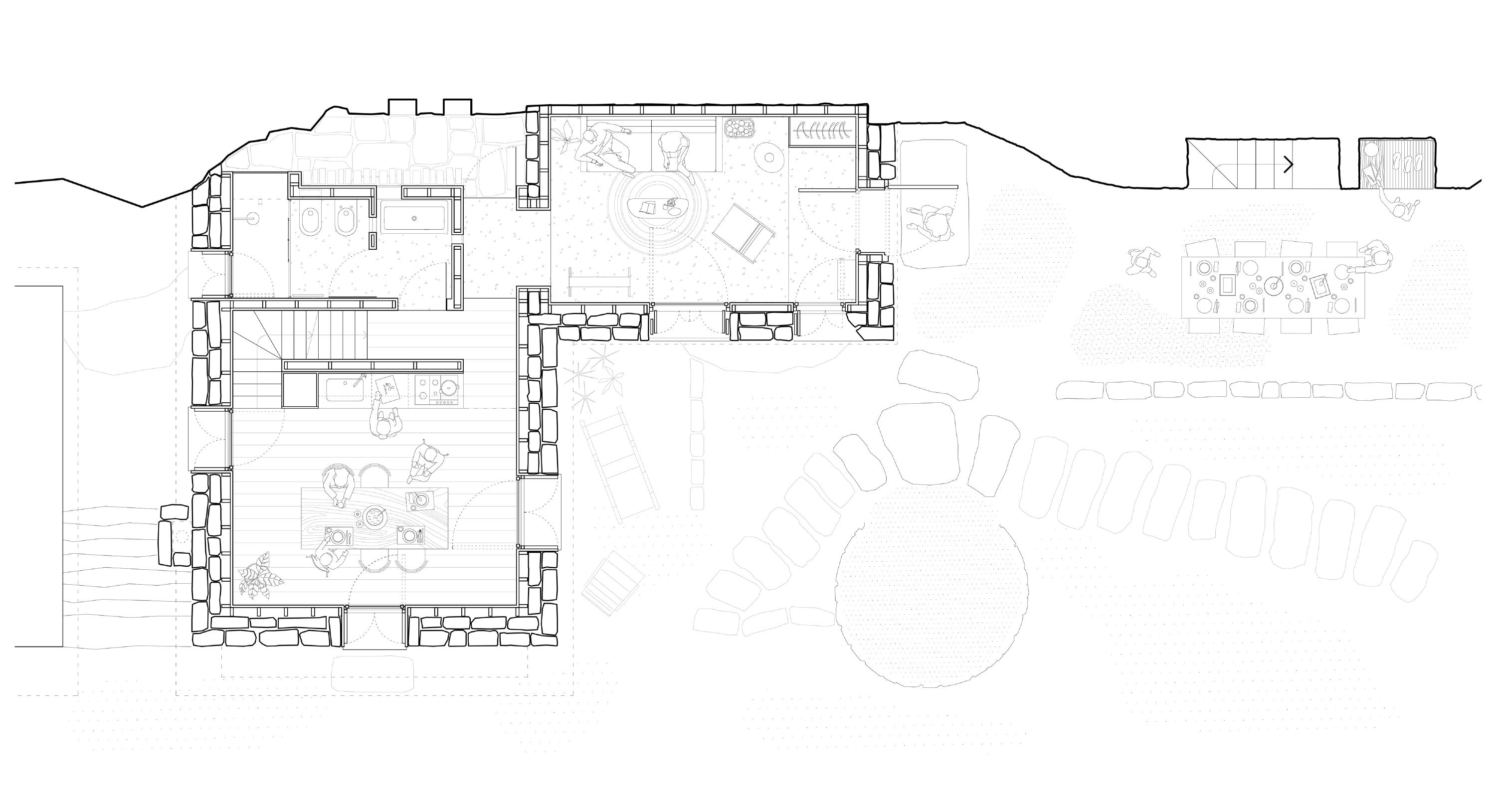
Masywna, kamienna skorupa zewnętrzna zachowuje swój tradycyjny charakter, wpisując się w krajobraz, natomiast wewnątrz rozwija się współczesny, w całości drewniany rdzeń mieszkalny. Takie rozwiązanie pozwoliło pogodzić wymogi konserwatorskie z potrzebą komfortu i aktualnych standardów użytkowych. Kluczową rolę odgrywa tu także reorganizacja wnętrza wokół centralnej, dwukondygnacyjnej jadalni z aneksem kuchennym, która porządkuje układ funkcjonalny i otwiera wnętrze na światło oraz widoki.

Casa Cinsc • ATOMAA

Wnętrze Casa Cincs jest wspaniałym miejscem do obserwacji gór. Usytuowanie okien wynika zarówno z położenia pierwotnych otworów, jak i nowych potrzeb. Projektowane "od środka na zewnątrz", tworzą kadry widokowe - budują „geografię” przestrzeni domowej. Każde pomieszczenie nawiązuje bezpośrednią i wyjątkową relację z naturą, której stara się być częścią.

Casa Cinsc • ATOMAA

Kontrast jest wyraźny: na zewnątrz twarda, chłodna bryła kamienna stapiająca się z krajobrazem, a wewnątrz ciepłe, intymne środowisko, w którym drewno odgrywa główną rolę. Kamień o dużej bezwładności cieplnej oraz wewnętrzna konstrukcja z izolacją z włókna drzewnego i wykończeniem ze sklejki brzozowej tworzą warstwową strukturę. W ten sposób osiągnięto komfort mieszkalny na miarę dzisiejszych potrzeb. Tam, gdzie to możliwe, wykorzystano również stare, większe elementy drewniane odzyskane z rozbiórki dawnych podłóg i zniszczonych belek dachowych, nadając im nowe funkcje.

Casa Cinsc • ATOMAA

Po wejściu, pierwszym pomieszczeniem jest salon. Znajduje się on w bryle, która została dodana do zastanego budynku. Przestrzeń ta została zaprojektowana jako miejsce odpoczynku, w towarzystwie wolnostojącego pieca o współczesnym charakterze. Podłoga wykonana jest z czarnej żywicy, co odróżnia nową część od starej części domu, gdzie zastosowano czerniony modrzew.

Casa Cinsc • ATOMAA Casa Cinsc • ATOMAA

Udając się wgłąb (dwa stopnie do góry, podłoga jadalni jest 30cm wyżej), przechodzimy do zabytkowej części budynku, w której pierwotnie znajdowało się wejście. Wchodzimy do jadalni - do centrum domu, z którego rozchodzą się wszystkie pomieszczenia.

Casa Cinsc • ATOMAA Casa Cinsc • ATOMAA Casa Cinsc • ATOMAA Casa Cinsc • ATOMAA Casa Cinsc • ATOMAA Casa Cinsc • ATOMAA

Bryła, w której znajduje się dwukondygnacyjna jadalnia, zawiera również dwie sypialnie oraz funkcje pomocnicze: "ścianę kuchenną", dwa biegi schodów oraz łazienkę.

Casa Cinsc • ATOMAA

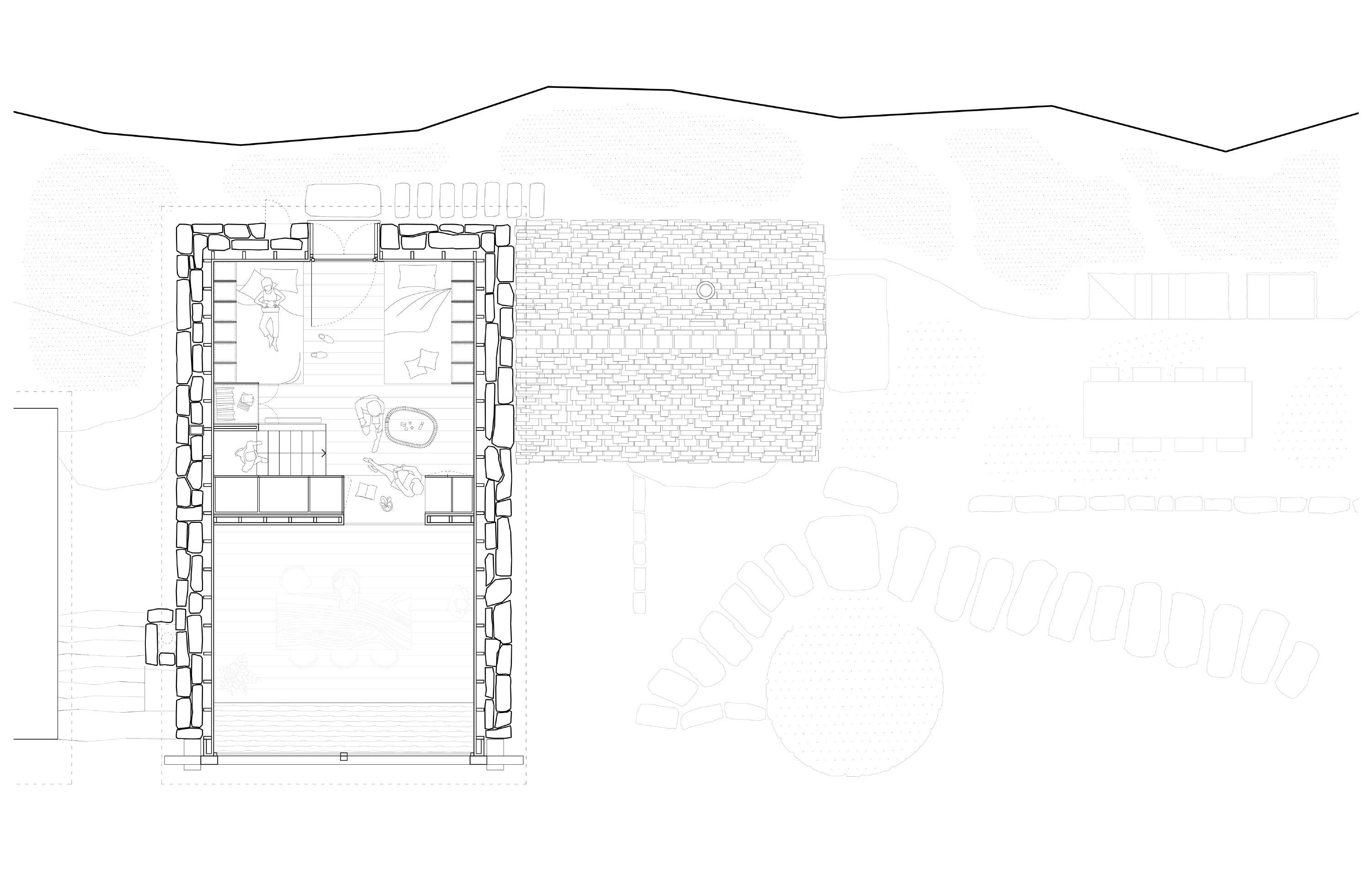
Pod połacią dachu, na wyższym poziomie, znajduje się sypialnia gościnna, do której wejdziemy schodami po lewej stronie aneksu kuchennego, biegnącymi na jego plecach. Z pokoju tego możemy podziwiać krajobraz przez przeszklony tympanon w salonie.

Casa Cinsc • ATOMAA Casa Cinsc • ATOMAA Casa Cinsc • ATOMAA Casa Cinsc • ATOMAA Casa Cinsc • ATOMAA

Udając się z jadalni w dół, trafimy do głównej sypialni na niższym poziomie. To prywatne miejsce, z wyjątkowym widokiem przez kamienny łuk, będący reliktem z przeszłości.

Casa Cinsc • ATOMAA Casa Cinsc • ATOMAA Casa Cinsc • ATOMAA Casa Cinsc • ATOMAA Casa Cinsc • ATOMAA Casa Cinsc • ATOMAA

Casa Cinsc wznosi się na skale, która została wyeksponowana w przyziemiu wszędzie, gdzie było to możliwe. Zbliża to mieszkańców jeszcze bardziej do natury. Miejscami jednak zastosowano surowy beton konstrukcyjny, który nie jest ukryty, ponieważ współgra z naturalnymi materiałami.

Casa Cinsc • ATOMAA Casa Cinsc • ATOMAA Casa Cinsc • ATOMAA Casa Cinsc • ATOMAA

Kamienie z rozebranych murów posłużyły do budowy nowych ścian, a drewno ze starej więźby dachowej do wykonania nadproży drzwi i okien. Mury oporowe tarasów wykonano z nowo wydobytej skały, podobnie jak część nowej bryły domu. Nawierzchnie zewnętrzne powstały z kamienia dawnego dachu. Było to możliwe było dzięki lokalnym wykonawcom, którzy wciąż posiadają umiejętności tradycyjnego budownictwa kamiennego.

Casa Cinsc • ATOMAA Casa Cinsc • ATOMAA Casa Cinsc • ATOMAA

Proces odnowy był balansowaniem między autentycznością, a współczesnością. Istotne były zachowanie atmosfery i tożsamości miejsca oraz ochrona alpejskiego dziedzictwa wiejskiego. Casa Cincs jest nie tylko odpowiedzią na potrzebę ucieczki od silnie zurbanizowanej rzeczywistości o szybkim tempie i niezliczonych możliwościach, lecz również daje możliwość odkrywania na nowo szczególnej więzi z naturą, która zawsze była nam bliska.

Casa Cinsc • ATOMAA Casa Cinsc • ATOMAA

Czym właściwie jest alpejskie dziedzictwo wiejskie? Na czym polega jego wartość? To historia miejsca zapisana w spontanicznej, ludowej architekturze. To krajobraz ukształtowany przez człowieka w harmonii z naturą. To właściwe proporcje między dziełem a otoczeniem, tworzące system, w którym zabudowa staje się niemal nierozróżnialna od krajobrazu. Współistnieją po prostu obok siebie.

Casa Cinsc • ATOMAA

Projekty

My

Blog

Kontakt